目录
一、CAD 制图的底层逻辑:从 “工具” 到 “思维”
二、高效绘图的黄金法则:让命令成为 “肌肉记忆”
精准绘制命令:除了基础的 Line(直线)、Circle(圆),Offset(偏移)和 Trim(修剪)堪称 “效率王”。绘制墙体时,用 Offset 快速生成平行线;处理多余线条时,Trim 配合 “F”( fence)选项一键清理。
修改编辑命令:Mirror(镜像)特别适合对称图形,如机械零件的对称结构;Array(阵列)能快速生成规律性排列的元素,如天花板的灯具布局。记住:重复操作必有快捷键。
标注注释系统:尺寸标注是图纸的 “语言”,设置好标注样式(DIMSTYLE)能避免后期大量修改。建议将线性标注、半径标注、角度标注的样式统一,确保字体大小、箭头样式与图纸比例匹配。
三、行业实战技巧:从图纸到落地的关键细节
四、工具进化与未来趋势:CAD 不止于 “画图”
CAD的使用CAD的实战指南学习方法实战能力命令学习快捷键介绍
在建筑设计的蓝图里,在机械零件的精密图纸中,在室内装修的布局方案上,CAD(计算机辅助设计)技术如同一位隐形的设计师,用数字化的线条勾勒出无数令人惊叹的作品。作为现代设计领域的核心工具,CAD 制图不仅改变了传统手绘的低效模式,更凭借精准性、可编辑性和协同性重塑了设计行业的工作流程。本文将从基础操作到进阶技巧,全方位拆解 CAD 制图的核心逻辑,助力初学者快速上手,让资深设计师突破瓶颈。
http://【CAD教程零基础入门必看(全套50节课)2025全新教程】 https://www.bilibili.com/video/BV1wBMmzGEzu/?share_source=copy_web
一、CAD 制图的底层逻辑:从 “工具” 到 “思维”
很多人学习 CAD 时容易陷入 “只练操作,不懂原理” 的误区。事实上,CAD 的本质是用数学坐标定义空间关系,每一条直线、每一个圆弧背后都是精确的参数设置。以 AutoCAD 为例,用户绘制的第一个图形往往是矩形,但很少有人思考:输入 “REC” 命令后,软件如何通过两个对角点的坐标计算出四条边的位置?理解 “坐标系统”(世界坐标 WCS 与用户坐标 UCS)是掌握 CAD 的关键,就像学绘画要先懂透视原理一样。
原始尺寸更换图片
p3-search.byteimg.com
body {
font-family: "Microsoft YaHei", sans-serif;
line-height: 1.8;
color: #333;
max-width: 1200px;
margin: 0 auto;
padding: 20px;
background-color: #f9f9f9;
}
header {
text-align: center;
margin-bottom: 40px;
padding-bottom: 20px;
border-bottom: 2px solid #0066cc;
}
h1 {
color: #0066cc;
font-size: 2.2rem;
margin-bottom: 10px;
}
h2 {
color: #0055aa;
font-size: 1.8rem;
margin: 30px 0 20px;
border-left: 4px solid #0066cc;
padding-left: 15px;
}
p {
margin: 15px 0;
font-size: 1.1rem;
}
.highlight {
font-weight: bold;
color: #0066cc;
}
ul {
margin: 15px 0 15px 30px;
}
li {
margin: 10px 0;
font-size: 1.05rem;
}
.image-container {
text-align: center;
margin: 20px 0 30px;
}
img {
max-width: 80%;
border: 1px solid #ddd;
padding: 10px;
border-radius: 5px;
}
footer {
margin-top: 50px;
padding-top: 20px;
border-top: 2px solid #0066cc;
text-align: center;
color: #666;
}
.note {
background-color: #e6f2ff;
padding: 15px;
border-radius: 5px;
margin: 20px 0;
font-style: italic;
}
CAD制图全攻略:从入门到精通的实战指南
在建筑设计的蓝图里,在机械零件的精密图纸中,在室内装修的布局方案上,CAD(计算机辅助设计)技术如同一位隐形的设计师,用数字化的线条勾勒出无数令人惊叹的作品。作为现代设计领域的核心工具,CAD 制图不仅改变了传统手绘的低效模式,更凭借精准性、可编辑性和协同性重塑了设计行业的工作流程。本文将从基础操作到进阶技巧,全方位拆解 CAD 制图的核心逻辑,助力初学者快速上手,让资深设计师突破瓶颈。
一、CAD 制图的底层逻辑:从 “工具” 到 “思维”
很多人学习 CAD 时容易陷入 “只练操作,不懂原理” 的误区。事实上,CAD 的本质是用数学坐标定义空间关系,每一条直线、每一个圆弧背后都是精确的参数设置。以 AutoCAD 为例,用户绘制的第一个图形往往是矩形,但很少有人思考:输入 “REC” 命令后,软件如何通过两个对角点的坐标计算出四条边的位置?理解 “坐标系统”(世界坐标 WCS 与用户坐标 UCS)是掌握 CAD 的关键,就像学绘画要先懂透视原理一样。
图1:CAD坐标系统与基础绘图界面展示
建议初学者从 “绝对坐标”(如100,200)到 “相对坐标”(如@50,30)逐步过渡,再尝试用 “极坐标”(如@100<45)绘制倾斜线条。当你能熟练用坐标控制图形位置时,就已经突破了 CAD 学习的第一道难关。
二、高效绘图的黄金法则:让命令成为 “肌肉记忆”
CAD 高手与新手的差距,往往体现在操作效率上。那些看似复杂的图纸,其实是由基础命令的组合完成的。掌握以下三大核心命令组,能让绘图速度提升 50% 以上:
- 精准绘制命令:除了基础的 Line(直线)、Circle(圆),Offset(偏移)和 Trim(修剪)堪称 “效率王”。绘制墙体时,用 Offset 快速生成平行线;处理多余线条时,Trim 配合 “F”( fence)选项一键清理。

图2:Offset(偏移)与Trim(修剪)命令实战效果
- 修改编辑命令:Mirror(镜像)特别适合对称图形,如机械零件的对称结构;Array(阵列)能快速生成规律性排列的元素,如天花板的灯具布局。记住:重复操作必有快捷键。
- 标注注释系统:尺寸标注是图纸的 “语言”,设置好标注样式(DIMSTYLE)能避免后期大量修改。建议将线性标注、半径标注、角度标注的样式统一,确保字体大小、箭头样式与图纸比例匹配。
三、行业实战技巧:从图纸到落地的关键细节
不同领域的 CAD 制图有其特殊规范。建筑设计需严格遵循《房屋建筑制图统一标准》,机械设计则要符合《机械制图国家标准》,忽略这些细节的图纸可能成为 “废纸”。
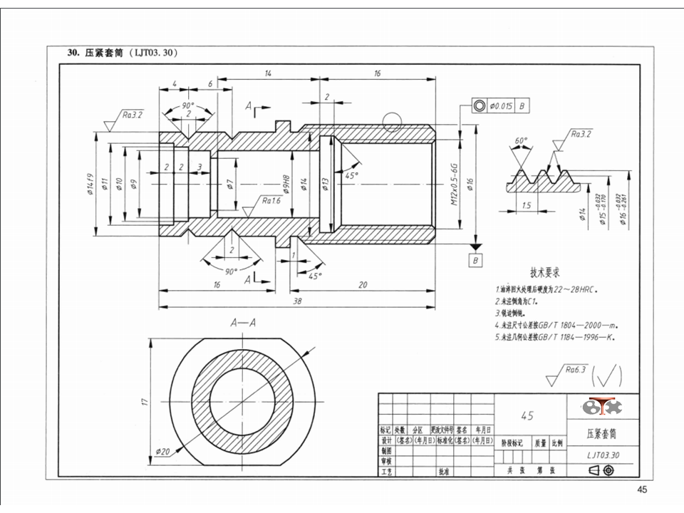
- 建筑制图:墙体线宽需区分(外墙 0.5mm,内墙 0.3mm),轴线用点划线表示,门窗编号要遵循 “M1021”(1 米宽 ×2.1 米高)的命名规则。
- 机械制图:零件的公差标注(如
Φ50H7)、表面粗糙度符号(√)、剖切视图的剖切符号,都是传递加工要求的关键信息。
图3:建筑与机械图纸的规范标注对比
此外,图层管理是大型项目的 “生命线”。建议按 “用途 + 颜色” 分类图层,如建筑图纸中 “墙线” 用黄色,“门窗” 用蓝色,“标注” 用绿色,后期修改时只需冻结无关图层,大幅提升效率。
四、工具进化与未来趋势:CAD 不止于 “画图”
随着 BIM(建筑信息模型)技术的兴起,CAD 正在从 “二维绘图” 向 “三维建模 + 数据管理” 转型。Revit、SolidWorks 等软件将几何信息与材料、成本、工期等数据关联,让图纸成为 “智能数据库”。例如,在 Revit 中修改墙体厚度,关联的门窗尺寸会自动调整,这是传统 CAD 难以实现的。
图4:BIM技术下的三维模型与数据关联展示
对于个人学习者,推荐从 AutoCAD 入手打好基础,再根据行业选择细分工具:建筑领域学 Revit,机械领域学 SolidWorks,室内设计则可尝试 SketchUp 配合 CAD 使用。
结语:从 “会画图” 到 “画好图” 的进阶之路
CAD 制图的终极目标不是 “画得快”,而是 “画得对”—— 让图纸精准传递设计意图,让施工者、制造者能轻松理解。初学者不必追求命令的 “全掌握”,先练熟 20 个高频命令(如 Line、Offset、Trim、Layer),再通过实际项目积累经验。记住:真正的 CAD 高手,能用最简单的命令画出最复杂的图纸,这背后是对设计逻辑的深刻理解。
下一次打开 CAD 软件时,不妨先问自己:这幅图要解决什么问题?需要传递哪些信息?当工具成为思维的延伸,每一条线条都会有其存在的意义。
(注:文中图片可通过以下方式获取:1. AutoCAD 软件内截图;2. 专业图纸网站(如筑龙网、机械 CAD 论坛);3. 自行绘制简化示意图并标注关键元素。)
本文由 CAD 技术爱好者整理发布,转载请注明出处。
更新时间:2025年7月
建议初学者从 “绝对坐标”(如100,200)到 “相对坐标”(如@50,30)逐步过渡,再尝试用 “极坐标”(如@100<45)绘制倾斜线条。当你能熟练用坐标控制图形位置时,就已经突破了 CAD 学习的第一道难关。
二、高效绘图的黄金法则:让命令成为 “肌肉记忆”
CAD 高手与新手的差距,往往体现在操作效率上。那些看似复杂的图纸,其实是由基础命令的组合完成的。掌握以下三大核心命令组,能让绘图速度提升 50% 以上:
精准绘制命令:除了基础的 Line(直线)、Circle(圆),Offset(偏移)和 Trim(修剪)堪称 “效率王”。绘制墙体时,用 Offset 快速生成平行线;处理多余线条时,Trim 配合 “F”( fence)选项一键清理。
原始尺寸更换图片
修改编辑命令:Mirror(镜像)特别适合对称图形,如机械零件的对称结构;Array(阵列)能快速生成规律性排列的元素,如天花板的灯具布局。记住:重复操作必有快捷键。
标注注释系统:尺寸标注是图纸的 “语言”,设置好标注样式(DIMSTYLE)能避免后期大量修改。建议将线性标注、半径标注、角度标注的样式统一,确保字体大小、箭头样式与图纸比例匹配。
三、行业实战技巧:从图纸到落地的关键细节
不同领域的 CAD 制图有其特殊规范。建筑设计需严格遵循《房屋建筑制图统一标准》,机械设计则要符合《机械制图国家标准》,忽略这些细节的图纸可能成为 “废纸”。
建筑制图:墙体线宽需区分(外墙 0.5mm,内墙 0.3mm),轴线用点划线表示,门窗编号要遵循 “M1021”(1 米宽 ×2.1 米高)的命名规则。
机械制图:零件的公差标注(如Φ50H7)、表面粗糙度符号(√)、剖切视图的剖切符号,都是传递加工要求的关键信息。
原始尺寸更换图片
p3-search.byteimg.com
此外,图层管理是大型项目的 “生命线”。建议按 “用途 + 颜色” 分类图层,如建筑图纸中 “墙线” 用黄色,“门窗” 用蓝色,“标注” 用绿色,后期修改时只需冻结无关图层,大幅提升效率。
四、工具进化与未来趋势:CAD 不止于 “画图”
随着 BIM(建筑信息模型)技术的兴起,CAD 正在从 “二维绘图” 向 “三维建模 + 数据管理” 转型。Revit、SolidWorks 等软件将几何信息与材料、成本、工期等数据关联,让图纸成为 “智能数据库”。例如,在 Revit 中修改墙体厚度,关联的门窗尺寸会自动调整,这是传统 CAD 难以实现的。
原始尺寸更换图片
p3-search.byteimg.com
对于个人学习者,推荐从 AutoCAD 入手打好基础,再根据行业选择细分工具:建筑领域学 Revit,机械领域学 SolidWorks,室内设计则可尝试 SketchUp 配合 CAD 使用。
结语:从 “会画图” 到 “画好图” 的进阶之路
CAD 制图的终极目标不是 “画得快”,而是 “画得对”—— 让图纸精准传递设计意图,让施工者、制造者能轻松理解。初学者不必追求命令的 “全掌握”,先练熟 20 个高频命令(如 Line、Offset、Trim、Layer),再通过实际项目积累经验。记住:真正的 CAD 高手,能用最简单的命令画出最复杂的图纸,这背后是对设计逻辑的深刻理解。
下一次打开 CAD 软件时,不妨先问自己:这幅图要解决什么问题?需要传递哪些信息?当工具成为思维的延伸,每一条线条都会有其存在的意义。